Création d'une maison culturelle - La Ville du Bois

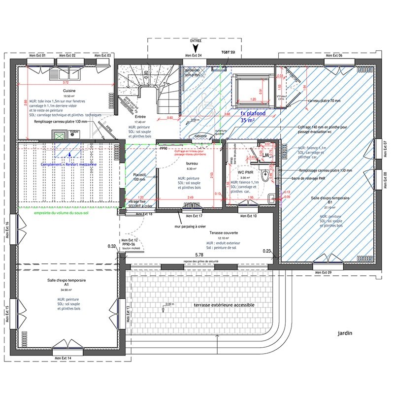
Réhabilitation de la propriété Schneersohn, située au cœur d’un parc arboré et verdoyant, en un lieu culturel qui servira de centre d’exposition pour la commune. Cet ancien lieu d’habitation a fait l’objet d’une réflexion pour répondre aux contraintes normatives et réglementaires (ERP, PMR, Sécurité incendie…) afin d’être adapté à son usage.
La Ville du Bois, maîtrise d’ouvrage, souhaite y aménager des espaces d’expositions permanents et temporaires. Elle a notamment pour projet d’acquérir une partie de la production de l’artiste Constantin Andréou pour l’exposer de façon permanente. Gréco-français d’origine brésilienne, l’artiste s’est installé en France en 1945, d’abord à Paris puis en Essonne. Il trouve dans la Ville-du-Bois l’environnement idéal pour ses créations et y donne naissance à des œuvres colossales. Inventeur du laiton soudé, Constantin Andréou est d’abord connu pour ses sculptures en bronze, mais il a également produit de nombreuses œuvres peintes. L’artiste de renom César a notamment pris des cours chez lui et on comptait également parmi ses amis l’architecte Le Corbusier, avec lequel il collaborera jusqu’en 1953.

Programme

Equipement culturel

MAÎTRISE D’OUVRAGE

Mairie de la Ville du Bois

COÛT TRAVAUX TTC

360 000 €

Localisation

La Ville du Bois (91)

SURFACE CONCERNEE

182 m²

Calendrier

Livraison Janvier 2022

MAÎTRISE d’oeuvre

Architecte mandataire : Atelier MAD

Découvrez d' autres projets