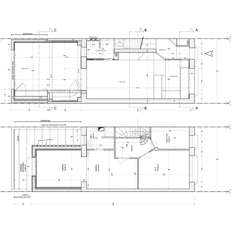
Le corps principal de cette maison, orientée Nord ( rue ) - Sud ( jardin ), est implanté sur toute la largeur de cette ancienne parcelle agricole ( 5m ). Afin d’agrandir l’espace dans son ensemble, nous avons choisi de travailler sur les volumes et l’ensoleillement côté jardin. Pour mettre en œuvre cette extension, nous avons dû concevoir une restructuration globale des espaces intérieurs. Ainsi, le garage et le cellier ont été transformés en un salon attenant à la salle à manger, pourvue dorénavant d’une cuisine. Le salon initial ( au R+1 ) est devenu aujourd’hui une chambre entièrement rénovée ; la surélévation en bois donnant sur le jardin, une suite parentale avec terrasse.
Afin de répondre aux exigences initiales de simplicité et de sobriété, nous avons privilégié des matériaux contemporains : enduit blanc ( RDC ), bois ( façade et pergola ) et acier ( garde-corps ). L’opposition des matières et le jeu des perspectives et volumes offrent à cette maison une lecture esthétique de ce nouveau programme.