Réhabilitation d'un Restaurant/Bar/Cabaret - Montreuil

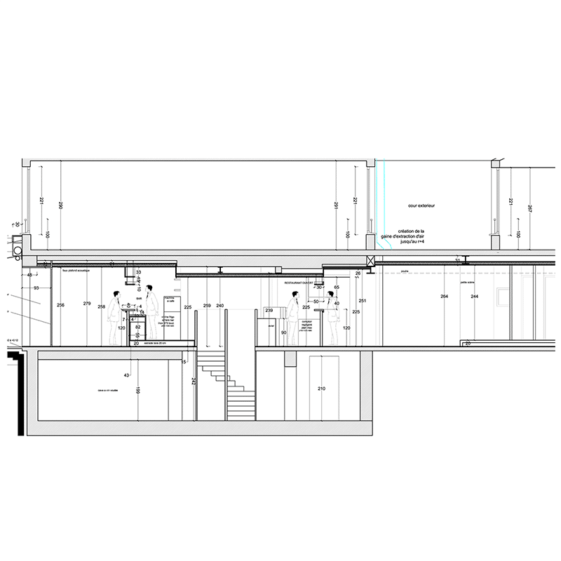
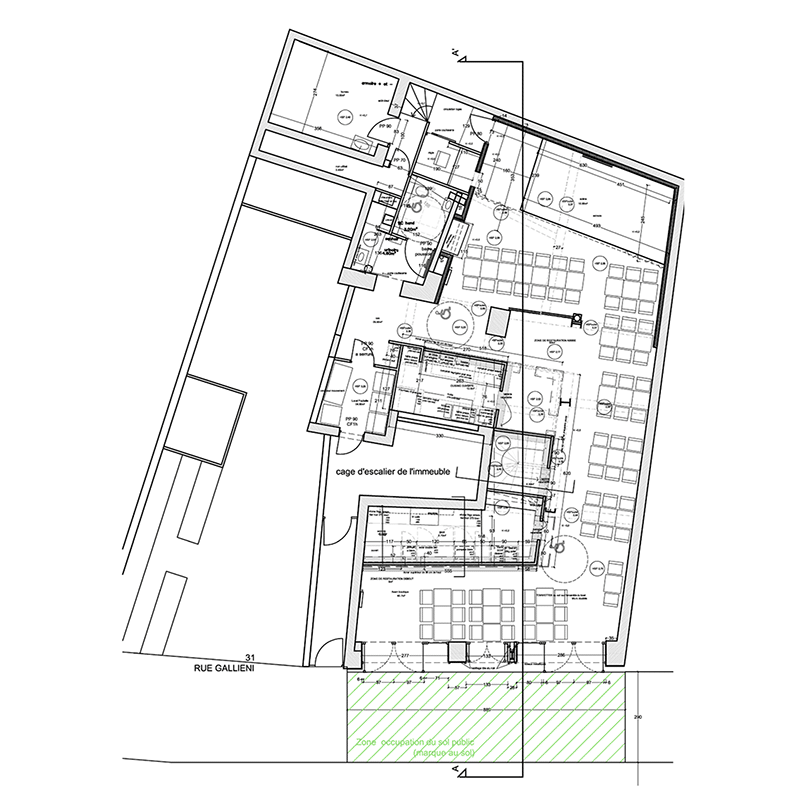
Le TRUC est un projet de réhabilitation d’un ancien magasin d’aquarium en un bar, restaurant, cabaret, jumelé avec le restaurant voisin, le BIDULE, bien connu de la jeunesse montreuilloise.

L’intention émise par notre client était de créer un espace convivial composé d’un bar et d’un espace de spectacle sur mesure permettant d’accueillir et de mêler une clientèle désireuse de se restaurer avec celle venue profiter des spectacles.

Programme

Commerce

MAÎTRISE D’OUVRAGE

n.c

COÛT TRAVAUX TTC

n. c €

Localisation

Montreuil (93)

SURFACE CONCERNEE

155 m² (+ 40 m² sous-sol)

Calendrier

Livraison Novembre 2014

MAÎTRISE d’oeuvre

Découvrez d' autres projets