Réagencement Clinique Saint Faron, phase 2 - Mareuil-lès-Meaux

La Clinique de Saint Faron,  installée  à Mareuil-les-Meaux, a fait l’objet d’un projet de restructuration profonde.
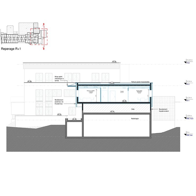
Dans un second temps, nous avons mené une étude de faisabilité pour la création du service de la direction au R+1 , dans une extension visible depuis l’entrée de la clinique, et idéalement raccordée aux autres services.

Programme

Équipement santé

MAÎTRISE D’OUVRAGE

Groupe Saint Gatien

COÛT TRAVAUX TTC

n.c €

Localisation

Mareuil-lès-Meaux (77)

SURFACE CONCERNEE

180 m²

Calendrier

Faisabilité en août 2021 (Phase 2)

MAÎTRISE d’oeuvre

Architecte mandataire : Atelier MAD

Découvrez d' autres projets