Réagencement Clinique Saint Faron, phase 1 - Mareuil-lès-Meaux

La Clinique de Saint Faron,  installée  à Mareuil-les-Meaux, a fait l’objet d’un projet de restructuration profonde.
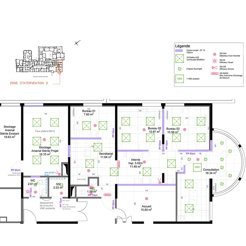
Lors de la première phase, nous avons proposé le ré agencement d’une salle de réunion en RDC bas et de la création d’un service de consultations CHIR mains au RDC Haut.
Dans un second temps, nous avons mené une étude de faisabilité pour la création du service de la direction au R+1 , dans une extension visible depuis l’entrée de la clinique, et idéalement raccordée aux autres services.

Programme

Équipement santé

MAÎTRISE D’OUVRAGE

Groupe Saint Gatien

COÛT TRAVAUX TTC

n.c €

Localisation

Mareuil-lès-Meaux (77)

SURFACE CONCERNEE

180 m²

Calendrier

Chantier livré Septembre 2021 (Phase 1)

MAÎTRISE d’oeuvre

Architecte mandataire : Atelier MAD

Découvrez d' autres projets