Rénovation du Groupe Scolaire les Amandiers - Les Pennes Mirabeau

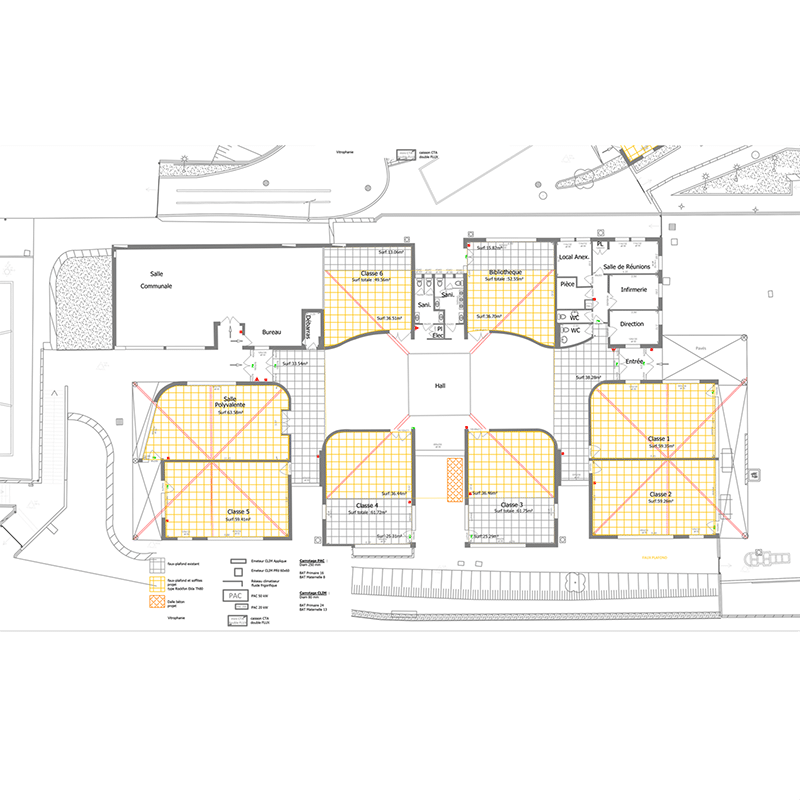
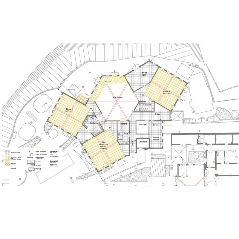
Ce projet englobe les travaux estivaux de rénovation au groupe scolaire des Amandiers, comprenant à la fois l’école maternelle et élémentaire. Ces travaux incluent l’installation de systèmes de climatisation, de CTA (Centrales de Traitement d’Air), et de ventilateurs en plafonnier dans chaque salle de classe, ainsi que le remplacement de l’éclairage par des dalles LED. De plus, des faux plafonds neufs ont été ajoutés dans les salles de classe pour réduire la consommation énergétique en limitant le volume à chauffer.

La particularité de ce chantier réside dans son délai de réalisation très court, avec une durée totale de seulement 6 semaines.

Programme

Équipement scolaire

MAÎTRISE D’OUVRAGE

Mairie des Pennes-Mirabeau

COÛT TRAVAUX TTC

354 000 €

Localisation

Les Pennes Mirabeau (13)

SURFACE CONCERNEE

400 m²

Calendrier

Livraison Août 2023

MAÎTRISE d’oeuvre

Architecte mandataire : Atelier MAD

Découvrez d' autres projets