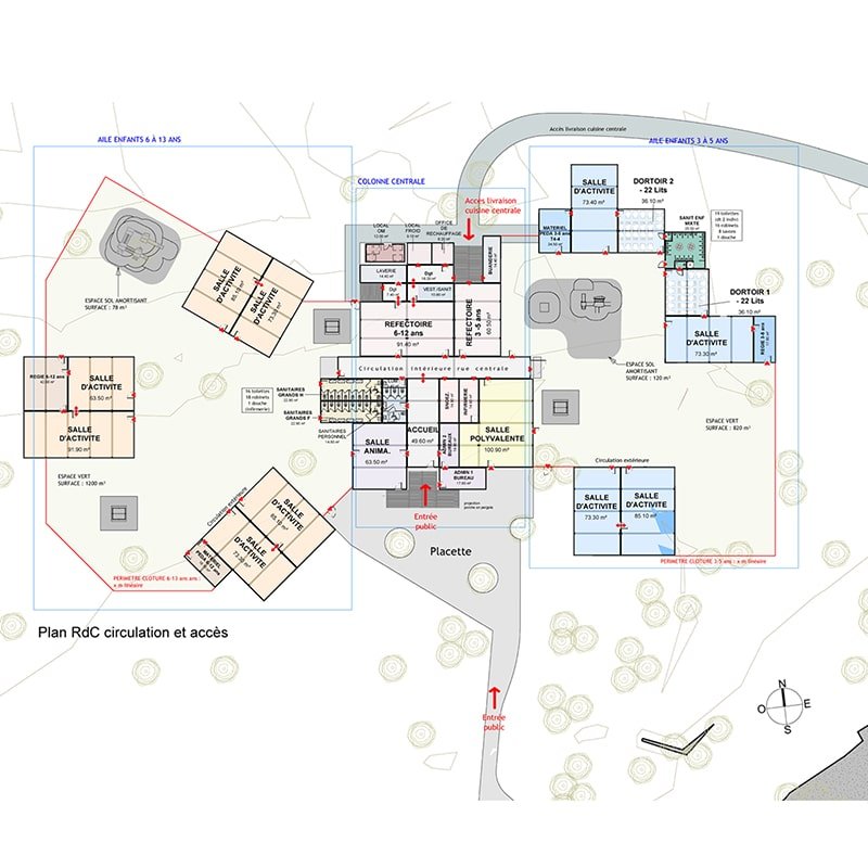
Projet de construction d'un Centre de Loisirs dans la pinède - Cabriès

L’Atelier MAD a été sensible à la démarche frugale de la commune. Elle s’inscrit dans le cycle vertueux du “Réemploi”. Ainsi des éléments préfabriqués seront remis en état afin de mutualiser les deux centres aérés dans un seul lieu, situé sur un site boisé. Concernant la méthodologie, il a fallu d’abord, poser un diagnostic sur les équipements existants. Ensuite, identifier les pathologies et enfin anticiper sur les modifications à venir. Il s’agit de mesurer ses interventions afin de préserver le cadre paysager remarquable. Ainsi, le raccordement de ce nouveau lieu est soumis à la topographie et aux réseaux actuels. Par ailleurs, la végétation impacte l’implantation spatiale.

L’Atelier MAD propose plusieurs solutions techniques adaptées au lieu : les fondations en Techno pieux , le sol drainant, le bardage bois. Les pieux métalliques permettent une mise en œuvre rapide, économique et non invasive du milieu naturel. Le revêtement de sol drainant des espaces extérieurs assurera la perméabilité et notamment lors de forte pluie. L’infiltration est privilégiée bien que des ouvrages de type “chaussée réservoir” en matériaux naturels seront réalisés, favorisant la biodiversité et la préservation de la ressource en eau.

D’un point de vue esthétique, il faudra trouver un équilibre dans le choix des matériaux (bois, métal) pour créer une identité tout en assurant l’insertion paysagère et le confort thermique du lieu. Ce projet mènera une optimisation des tranchées et des opérations ponctuelles de terrassement.

Ces solutions techniques ainsi que l’attention au cycle de vie des bâtiments permettent de réduire l’emprunte carbone du centre de loisirs. Ce projet répond à des attentes environnementales à long terme. En effet, en cas de changement d’usage du site, les techno pieux comme les éléments préfabriqués peuvent être retirées avec facilité.

 

Programme

Équipement de Loisir

MAÎTRISE D’OUVRAGE

Mairie de Cabriès

COÛT TRAVAUX TTC

3 000 000 €

Localisation

Cabriès (13)

SURFACE CONCERNEE

1 100 m²

Calendrier

APD en Avril 2023 -projet arrêté

MAÎTRISE d’oeuvre

Architecte mandataire : Atelier MAD
BET VRD : Bet LAMOUR
BET SSI : Consulting Sécurité Incendie

Découvrez d' autres projets